
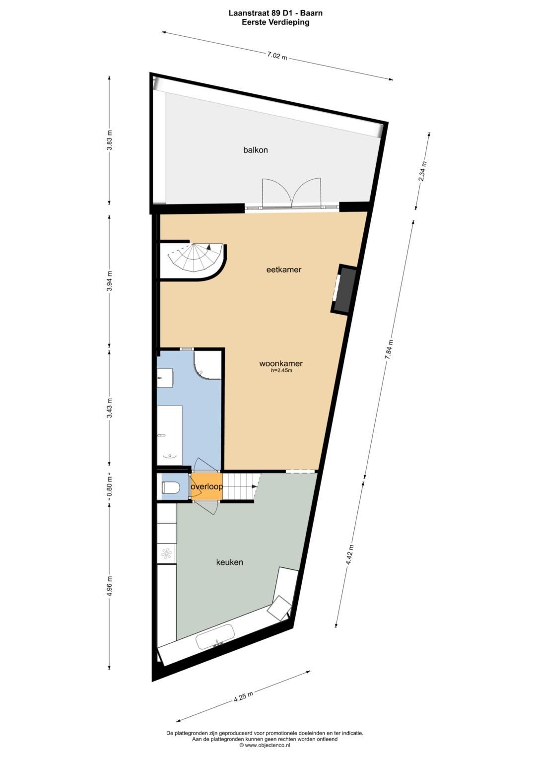
Geweldig centraal wonen, midden in het levendige en gezellige centrum van Baarn! Met leuk uitzicht over de Laanstraat de winkelstraat van Baarn met haar sfeervolle speciaalzaken, supermarkten en horeca, n op loopafstand van het NS-station, ligt deze verrassend ruime hoekmaisonnette van maar liefst 108 m2 met twee zonnige terrassen (circa 20 m2 en 14 m2) op het zuidwesten. De woning bevindt zich op de 1e en 2e woonlaag, is voorzien van dubbel glas, nieuwe (onder) vloer op 1e verdieping (2024) en een nieuwe cv-combiketel (2024). De entree bevindt zich aan de achterzijde van het gebouw. INDELING Begane grond entree Via de achterzijde: hal met plavuizenvloer en vaste kast, hal-berging met wasmachineaansluiting en toegang tot de spiltrap naar de 1e verdieping. 1e verdieping Via de speelse spiltrap bereikt u de verrassend ruime living van ca. 39 m2 een heerlijke, lichte ruimte met de sfeer van een luxe woonhuis. De woonkamer is voorzien van een visgraat PVC-vloer, een fraaie schouw met open haard en strak gestuct plafond met LED-inbouwspots. Openslaande deuren geven toegang tot het eerste grote zonnige dakterras van ca. 20 m2, voorzien van elektrisch zonnescherm, met veel privacy en een fijne ligging op het zuidwesten. De royale woon-eetkeuken is licht, neutraal van kleur en uitgerust met diverse inbouwapparatuur; vanuit hier kijkt u leuk uit over de Laanstraat. Aansluitend een halletje met toilet en een complete, witte badkamer met ligbad, douchecabine, wastafelmeubel en designradiator. 2e verdieping Vaste trap naar de bovenverdieping met overloop. Hier bevinden zich twee ruime slaapkamers: een speelse kamer aan de voorzijde met dakkapel en dakisolatie, en een zeer royale slaapkamer van ca. 19 m2 aan de achterzijde met openslaande deuren naar het tweede zonnige dakterras (ca. 14 m2) eveneens pal op het zuidwesten. BIJZONDERHEDEN Woonoppervlakte: ca. 108 m2 Twee heerlijke dakterrassen met veel zon en privacy Nieuwe cv-combiketel (2024) Dubbel glas en brandwerende vloer 1e etage Servicekosten: ca. 111,- pm Voorschot gaslichtwater: ca. 240,- pm Kortom: de ruimte en sfeer van een compleet woonhuis, met het gemak van wonen in het hart van het centrum en volop buitenruimte om van de zon te genieten. Kom deze verrassende maisonnette zelf ervaren u zult aangenaam verrast zijn!
| Bendroji informacija | |
| Kaina | 345.000 € |
| Statusas | pasiekiamas |
| Priėmimas | In overleg |
| Nekilnojamas turtas | |
| Konstrukcijos tipas | Bestaande bouw |
| Buto tipas | Bovenwoning |
| Statybos metai | 1931 |
| Stogo tipas | Zadeldak bedekt met pannen |
| Paviršiai ir turinys | |
| Paviršius | 108 m2 |
| Lauko teritorija, priklausanti pastatui | 34 m2 |
| Visas paviršius | 348 m2 |
| Skyrius | |
| Kambarių skaičius | 4 kamers (2 slaapkamers) |
| Vonios kambarių skaičius | 1 badkamer en 1 apart toilet |
| Vonios įranga | Douche, ligbad, en wastafelmeubel |
| Aukštų skaičius | 3 woonlagen |
| įranga | Buitenzonwering, mechanische ventilatie, natuurlijke ventilatie, rookkanaal, en TV kabel |
| Energia | |
| Tipas | E |
| Izolacija | Dubbel glas |
| šildymas | Cv-ketel en open haard |
| Karštas vanduo | Cv-ketel |
| Katilas | Intergas (gas gestookt combiketel uit 2024, eigendom) |
| Kadastro duomenys | |
| Nuosavybės struktūra | Volle eigendom |
| Plotas už ribų | |
| Vieta | In centrum |
| Balkonas/Terasa | Dakterras aanwezig en balkon aanwezig |
| Papildoma vieta |
| Garažas |
| Lista spółdzielni mieszkaniowej | |
| Registracija KVK | Nee |
| Metinis susitikimas | Nee |
| Reguliarios įmokos | Nee |
| Esamas rezervo fondas | Ja |
| Techninės priežiūros planas | Ja |
| Namo išorės draudimas | Ja |
Pateikite informacijos, kad galėtumėte nemokamai patikrinti maksimalią hipotekos sumą, kurią galite gauti.